Asset 2LF Logo
Screenshot 2025-02-05 at 10.50.02 AM

Welcome to Lianas Forest, a carefully designed habitat where nature comes to life. Red pandas navigate towering climbing structures, clouded leopards move through lush enclosures, and orchids and carnivorous plants fill a central atrium. A redesigned Bornean orangutan space encourages natural behaviors while offering an engaging experience for visitors. Step inside and explore a world where animals and their environments thrive.

Screenshot 2025-02-17 at 12.12.10 PM

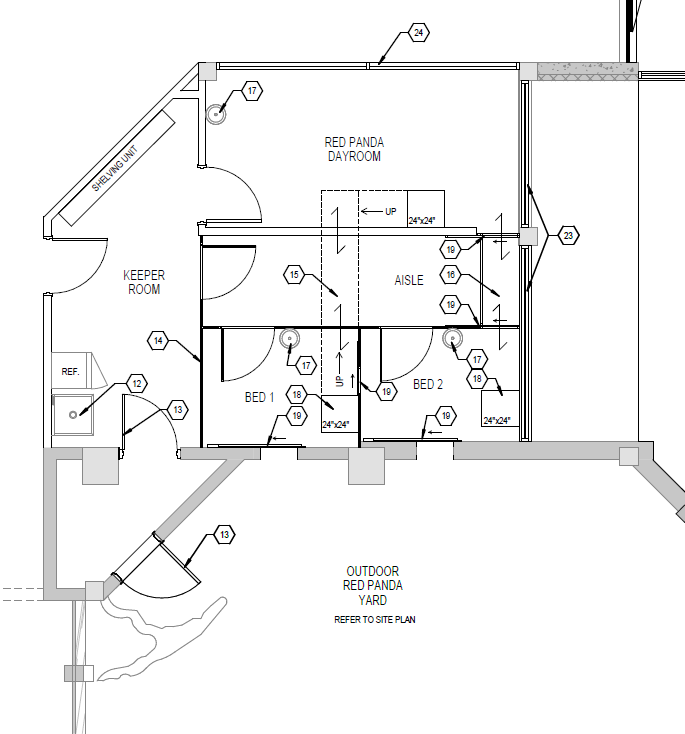
RED PANDAS

Step into a dynamic, thoughtfully designed space where the wonders of nature unfold in an exciting new way. The red panda habitat is a stunning blend of vertical climbing structures and winding pathways, surrounded by vibrant plant life that reflects the mountainous regions these charming creatures call home.

pexels-matej-bizjak-2148520448-30432281
2025.04.29_RENDERING_TOPEKAZOO_RED PANDA

CLOUDED LEOPARD

Just adjacent, the clouded leopard habitat mirrors a similar sense of mystery and intrigue, with textured rock formations, dense foliage, and cleverly concealed spaces where these elusive cats can quietly observe their surroundings.

In the heart of the space, an atrium filled with orchids creates a stunning visual centerpiece, while a carefully curated selection of carnivorous plants adds a touch of the unusual, sparking curiosity among visitors.

Young Clouded Leopard - Neofelis Nebulosa
Screenshot 2025-02-17 at 12.12.03 PM
Screenshot 2025-02-05 at 10.54.17 AM
Screenshot 2025-02-05 at 10.53.41 AM
Screenshot 2025-02-05 at 10.53.59 AM
Screenshot 2025-02-05 at 10.53.33 AM
2025.04.29_RENDERING_TOPEKAZOO_C LEOPARD

Bornean orangutan

A revamped Bornean orangutan habitat features expansive, state-of-the-art spaces that combine both indoor and outdoor environments to cater to the needs of the orangutans. The thoughtful design encourages parallel play between species, with areas where each can enjoy their natural behaviors while providing a rich and engaging experience for visitors. It’s an innovative, immersive environment where animal welfare and guest experience seamlessly coexist.

2025.04.29_RENDERING_TOPEKAZOO_ORANGUTAN
pexels-flickr-146230

On behalf of the Topeka Zoo and all those who will benefit from your generosity, we extend a heartfelt thank you for your donation towards our masterplan. Your support plays a vital role in our efforts to create a more sustainable and engaging environment for our community. Together, we are paving the way for a brighter future, where education and conservation thrive. Thank you for your commitment to the Topeka Zoo.

EIN: 48-6117369